Search

نرده شیشه ای توکار

نرده شیشه ای توکار  یا دفنی یکی از مدرن ترین و زیبا ترین جان پناه ها در ساختمان است. این نرده به صورت کاملا فریم لس می باشد. در سیستم نرده شیشه ای توکار تمامی اجزای نرده و اتصالات سازه ای آن در تراز کف کاملا مخفی می شوند.این امر باعث می شود که خروجی نهایی چشم نواز تر و مینیمال تر به نظر آید. از این نوع نرده شیشه ای می توان در ساختمان ‌های مسکونی، اداری، تجاری و یا ویلا ‌ها استفاده کرد. در اینصورت علاوه بر گستردگی دید از نور طبیعی به صورت حداکثری بهره مند شد.

مزایای استفاده از نرده شیشه ای توکار

  • پنهان بودن اجزای نرده شیشه ای توکار
  • امکان استفاده در تمامی اقلیم ها
  • امکان استفاده در تمامی فضاهای داخلی و خارجی و کاربری های مختلف
  • امکان اجرا با سرعت بالا و ابعاد مختلف
  • قابلیت انتخاب کاور درپوش و هندریل ها با رنگ دلخواه آنادایز یا الکترواستاتیک بر حسب نیاز پروژه.
  • نرده های شیشه ای از استقامت و ایستایی بالایی برخوردارند به طوری که بیشترین ضربه و فشار را تحمل می کنند.

معایب استفاده از نرده شیشه ای توکار

  • احتمال ضربه و ایجاد خط و خش روی شیشه هنگام تمیزکاری کف
  • حداقل فضای کف سازی ۱۴ الی ۱۶ سانتیمتر میباشد.
  • پیچیده شدن روش عایقکاری کف

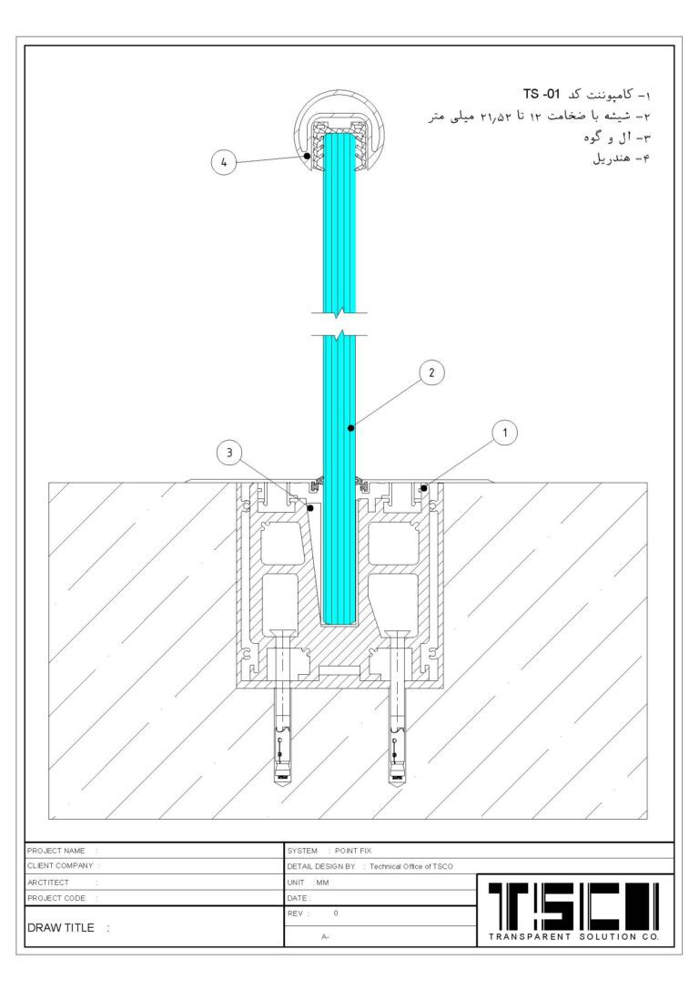
اجزای نرده شیشه ای توکار

  • پروفیل آلومینیومی U شکل که نقش راهنما و گاتر را ایفا میکنند.
  • قطعات آلومینیومی اصلی که نگهدارنده شیشه هستند.
  • گوه که شیشه را روی قطعات فیکس می کند.
  • پیچ و رول بولت که قطعات را به سازه اصلی متصل می کند.
  • درپوش هایی با جنس آلومینیوم که ابتدا و انتهای کار را می پوشاند.

نصب نرده شیشه ای توکار

برای نصب نرده شیشه ای توکار باید قبل از کف سازی، یک پروفیل ناودانی شکل در کف به عنوان راهنمای تراز کف، کار شود.

در این نوع نرده با توجه به نوع پروژه از شیشه های سکوریت و با ضخامت ۱۰ تا ۱۵ میلی متر و یا شیشه های سکوریت لمینیت دو لایه ۶ و طلق ۱.۵ میلی متر، استفاده می شود. باید توجه داشت که شیشه های سکوریت لمینیت شده، امنیت و ظرفیت باربری بالاتری نسبت به شیشه های معمولی دارند، به همین دلیل بهتر است از این نوع شیشه در پروژه ها به خصوص نرده استفاده شود.

نکات نصب نرده شیشه ای توکار

۱. آب بندی

یکی از مهم ترین مواردی که باید در نصب نرده شیشه ای توکار به آن توجه کرد، آب بندی است. قبل از کف سازی نرده شیشه ای توکار، باید نسبت به آب بندی آن اقداماتی صورت گیرد به این دلیل که در این نوع نرده، آب های سطحی به راحتی از بین شیشه ها عبور کرده و به داخل پروفیل U شکل می ریزد. بنابراین تخلیه این آب و انتقال آن به کف شور از موارد مهم نصب نرده شیشه ای توکار است که باید به آن دقت شود.

۲. زیر سازی

جهت زیر سازی نرده توکار به صورت اصولی باید یک پروفیل فولادی به همراه دستک ها با فواصل مشخص در محل نصب شیشه ها اجرا شود تا استحکام و امنیت آن به حداکثر برسد. جهت زیرسازی و نصب نرده شیشه ای توکار فضایی به ارتفاع حدود۱۴ الی ۱۶ سانتی متر و عرض حدود ۱۰ سانتی متر، مورد نیاز است. برای قسمت نشیمن پروفیل های آلومینیومی، باید زیرسازی فولادی حدود ۵ تا ۶ سانتی متر در نظر گرفت تا اجرای نرده شیشه ای توکار به صورت کاملا دقیق و ایمن صورت گیرد. ۱۰ سانتی متر باقی مانده هم با پروفیل نرده شیشه ای توکار، پر خواهد شد. به همین منظور عمق ۱۶ سانتی متری برای زیرسازی مورد نیاز است.

۳. جنس و ابعاد پروفیل ها

پروفیل های نرده شیشه ای توکار از جنس آلومینیوم با آلیاژهایی که مقاومت بالایی دارند تولید شده اند و به گونه ای طراحی شده اند تا بتوانند نیرو های وارده به نرده شیشه ای را کنترل و آن را به زیر سازی انتقال دهند. این پروفیل ها با طول ۱۵ و ۳۰ سانتی متر برش داده می شوند و طبق جزییات فنی و ضوابط ارائه شده توسط تولید کنندگان این پروفیل ها، نصب می شوند. قطعات نگهدارنده ۱۵ سانتی متری با فاصل داخل به داخل ۳۰ سانتی متری روی زیر سازی نصب می شوند. همچنین قطعات نگهدارنده ۳۰ سانتی متری در قسمت حد فاصل دو جام شیشه قرار می گیرند تا هر کدام از جام های شیشه به طور مساوی تحت فشار قرار بگیرند.

۴. نوع شیشه

در نرده های شیشه ای توکار، نیروی خارجی ابتدا به شیشه وارد می شود سپس شیشه آن را به سازه منتقل می کند به همین دلیل باید از شیشه هایی با ایمنی بالا اسفاده شود. برای فضاهای کم تردد، شیشه هایی با ضخامت ۱۲ میلی متر مناسب است. البته باید در نظر داشته باشید که طبق ضوابط آتش نشانی برای فضاهای عمومی و یا فضاهای بیرونی مانند بالکن ها، نرده های شیشه ای باید به صورت سکوریت و لمینیت باشند و ارتفاع حداقل ۱۱۰ سانتی متر مورد نیاز است.

۵. تحمل بار

نرده های شیشه ای که مناسب منازل هستند می توانند تا ۱۵۰ کیلوگرم بر متر مربع ضربات جانبی را تحمل کنند اما نرده های شیشه ای که برای محیط های شلوغ و پر ترافیک مانند مراکز خرید و مکان های عمومی طراحی می شوند، می توانند تا ۳۰۰ کیلوگرم بر متر مربع ضربات جانبی را تحمل کنند.

مراحل نصب نرده شیشه ای توکار

  • در نظر گرفتن فضای مناسب در کف
  • نصب پروفیل فولادی همتراز با کف تمام شده
  • نصب قطعات نگهدارنده شیشه با فواصل ذکر شده در مشخصات فنی
  • نصب قطعات فیکس کننده شیشه ها
  • جایگذاری شیشه ها
  • قرار دادن گوه برای فیکس کردن شیشه ها
  • تراز کردن شیشه ها
  • نصب کاور های درپوش
  • آب بندی
  • نصب هندریل

در نظر داشته باشید که به دلیل حساسیت بالای نصب نرده های شیشه باید از متخصصین در این زمینه کمک گرفته شود. شما می توانید با تماس با گروه تسکو از مشاوره رایگان در این زمینه برخوردار شوید.

TS-01 | نرده شیشه ای فریم لس توکار

اجزای اصلی

TS01
تلفن
تلفن
نوع نصب
داخل زیرسازی کف
واحد بسته بندی
یک شاخه
موارد مصرف
فضاهای بیرونی و داخلی
ضخامت شیشه
۱۷.۵ میلی متر
جنس
استیل استین لس
طول
۵۰۰۰ میلی متر
ارتفاع
۱۰۰ میلی متر
ساختار شیشه
لمینیت / یکپارچه

دانلود نقشه ها

ts- 01-TSCP-Model

Glass fence

>
×

 

درود

در واتس اپ با ما در ارتباط باشید

× مشاوره رایگان