Search

نرده شیشه ای دو خطی

نرده شیشه ای دو خطی یا Dou – Line از جذابیت، زیبایی و استحکام بالایی برخوردار است. از نرده شیشه ای دو خطی در پروژه هایی که فرم مدولار و متقارن دارند، استفاده می شود. فرم زیبا و مینیمال این نرده به گونه ای است که پروفیل آن به صورت دو خط موازی طراحی شده که جلوه ای خاص به پروژه شما می بخشد.مزایای بالای نرده شیشه ای دو خطی باعث شده است که این نرده در اکثر پروژه ها از جمله مراکز تجاری، اداری، تفریحی، مسکونی، ویلا ها، تراس، بالکن، اطراف استخر، روف گاردن و … کاربرد داشته باشد.

مزایای نرده شیشه ای دو خطی

  • دارای فرم مینیمال و مدرن
  • قابل استفاده در تمامی کاربری ها و محیط های داخلی و خارجی
  • نصب سریع و آسان در مدت زمان کوتاه
  • به صرفه بودن از لحاظ اقتصادی
  • مقاومت و امنیت کافی
  • بدون نیاز به زیرسازی، آهن کشی و تخریب
  • قابلیت تنظیم ارتفاع به دلخواه کارفرما
  • قابلیت نصب به صورت تو کار و یا نصب از جداره ها

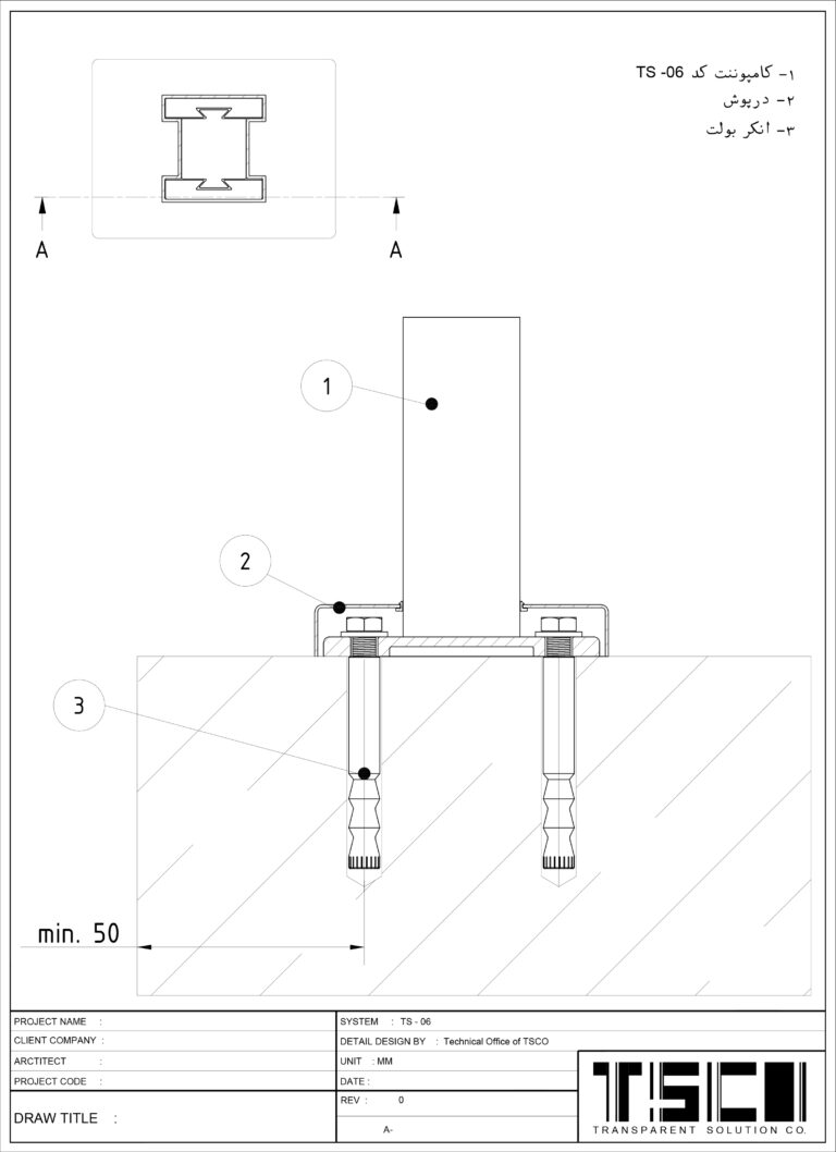
اجزاء نرده شیشه ای دو خطی

  1. پایه های نگهدارنده اصلی از جنس آلومینیوم آلیاژی ۶۰۶۳
  2. قطعات اتصال پایه ها به شیشه
  3. قطعات اتصال پایه ها به کف
  4. درپوش پایه ها
  5. شیشه سکوریت یا لمینیت

مراحل نصب نرده شیشه ای دو خطی

برای نصب نرده شیشه ای دو خطی، ابتدا کف را تراز کرده و قطعات اتصال به کف توسط مهره های مکانیکی، در فاصله های مشخص نصب می شوند. سپس پایه های اصلی روی قطعات نگهدارنده قرار میگیرند و توسط پیچ های مخصوص فیکس می شوند. پس از فیکس و تراز شدن تمامی اجزاء نرده، درپوش قطعه اتصال به کف جایگذاری شده و قطعات متصل کننده پایه و شیشه روی پایه ها نصب می شوند. در مرحله آخر شیشه ها با دقت جایگذاری شده و فیکس می شوند. در صورت نیاز و صلاحدید کارفرما هندریل بر روی شیشه نصب خواهد شد.

جهت اطلاع از قیمت و نوع نرده متناسب با پروژه خود با کارشناسان گروه مهندسی تسکو تماس بگیرید تا از مشاوره رایگان در این زمینه برخوردار شوید.

TS-06 | نرده شیشه ای دو خطی

اجزای اصلی

TS-06
تلفن
تلفن
نوع نصب
کف و دیواره ها
واحد بسته بندی
یک سیستم
موارد مصرف
فضاهای بیرونی و داخلی
ضخامت شیشه
۱۵ تا ۲۱.۵ میلی متر
جنس
استیل استین لس
قطر
۵۰ میلی متر
ارتفاع
متناسب با ارتفاع شیشه
ساختار شیشه
لمینیت / یکپارچه

دانلود نقشه ها

TS-06 (3)

TS-06 (3)

TS-06 (2)

TS-06 (2)

TS-06 (1)

TS-06 (1)

>
×

 

درود

در واتس اپ با ما در ارتباط باشید

× مشاوره رایگان